编辑:sx_shangjianm
2018-02-24
从中国石油大学得知克拉玛依校区本科招生网得知,中国石油大学克拉玛依校区2018高水平运动队考试时间为2018年3月10日,测试地点为中国石油大学(北京)北京校区体育馆。详细内容请看下文。
中国石油大学克拉玛依校区2018高水平运动队考试时间:3月10日
【招生计划】
| 项目 | 小项 | 招生计划数 |
| 羽毛球 | 男子 | 0-6 |
| 女子 | 0-4 |
【初审结果】
查询时间:2018年3月5日
校区本科招生办公室汇总报名名单,报校区招生工作小组组长审批。
文理学院体育系负责组织专家对考生的报名材料进行审核,结合校区高水平运动队建设需要,根据考生政治思想表现、学习成绩和专项水平等,择优拟定初审合格名单,校区本科招生办公室审查,校区招生工作小组组长审批,发布初审合格名单。
【报到安排】
报到时间:2018年3月9日上午(8:00-12:00),下午体检
报到地点:中国石油大学(北京)北京校区体育馆。
考生须提供身份证、高中阶段二级(含)以上国家等级运动员证书、运动会秩序册、成绩册、成绩证书等原件。
一寸近期彩色免冠证件照4张。
凡参加校区高水平运动队招生测试的所有考生须购买测试期间的个人“人身意外伤害保险”。
体检合格,并签订“同意接受兴奋剂检查和不使用兴奋剂的承诺书”,方允许参加测试。
【测试时间】
2018年3月10日
【测试地点】
中国石油大学(北京)北京校区体育馆。
【测试内容】
测试指标与所占分值
| 类别 | 身体素质 | 基本技术 | 实战能力 | |
| 指标 | 场地移动 | 前场技术 | 后场技术 | 比赛 |
| 分值 | 10分 | 10分 | 10分 | 70分 |
(1)场地移动
测试方法:
考生站在场地右侧单打底线以外(右手持拍)先进行前后移动,听到口令(同时开表)后,直线上网,单手触网后,直线后退踩底线为完成一个来回,反复进行5次。第5次上网触网后,后退踩底线同时要求双脚出单打边线,并连续做5次左右移动。
左右移动,用持拍手触球,面向球网转身,然后向右侧移动用持拍手触球,为完成一次左右移动。如此反复进行5次。当完成5个回合的左右后在右侧(右手持拍)触线时停表,记录所用时间(见图一)。

(2)前场技术(正反手放、勾、推)
测试方法:
在右侧(左侧)区击球(共20个球)
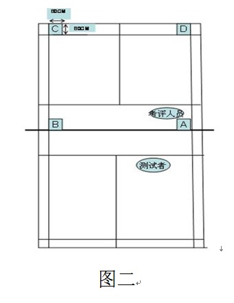
由考评人员向测试者右(左)侧网前抛球,测试者站在前发球线外上网并按照固定的顺序(共击8个球):放、勾、推、推技术把球分别击到指定的区域内(A、B、C、D),并轮转2次。最后剩下的两球由考生将球击到提前选择的2个区域内(从A、B、C、D中选其二,但是两点不能相同)(见图二)。

(3)后场技术(直线和斜线高远球、吊球)
测试方法:
在右侧(左侧)区击球(共20个球)
由考评人员发高球,考生站在右场区双打后发球线外进行斜线分别应用高球和吊球技术将球击到指定的区域内(E、F、G、H),并轮转2次。最后两球的落点由考生在E、F中选择一个和G、H中在一个(见图三)。

(4)比赛
中国石油大学克拉玛依校区2018高水平运动队考试时间为大家介绍到这里了,欲了解更多高考相关内容,请点击【高考资讯】栏目。精品学习网会第一时间为大家更新高考热点内容,请大家保持关注哦~
标签:新疆高考录取查询
精品学习网(51edu.com)在建设过程中引用了互联网上的一些信息资源并对有明确来源的信息注明了出处,版权归原作者及原网站所有,如果您对本站信息资源版权的归属问题存有异议,请您致信qinquan#51edu.com(将#换成@),我们会立即做出答复并及时解决。如果您认为本站有侵犯您权益的行为,请通知我们,我们一定根据实际情况及时处理。